Thứ Ba, 7 tháng 5, 2013

Rò rỉ sơ đồ thiết kế Chung cư VP5 Linh Đàm

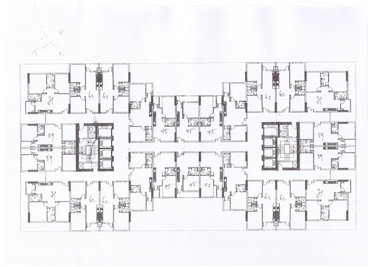
Rò rỉ sơ đồ thiết kế Chung cư VP5 Linh Đàm trước ngày mở bán. Diện tích từ 45m2 - 71m2: Có căn 1 phòng ngủ, 2 phòng ngủ, và không có căn 3 phòng ngủ.


Quý khách có nhu cầu tìm hiểu thông tin dự án, đặt chỗ mua căn hộ vui lòng liên hệ sớm để được chọn căn chọn tầng: Chị Thủy 0934 669 228 / 0904 85 99 23


Để tìm hiểu thêm thông tin về dự án, quý khách vui lòng tham khảo tại:

Thứ Hai, 1 tháng 4, 2013

Tổng quan

CHUNG CƯ VP5 LINH ĐÀM
HOTLINE 0934 669 228 / 0904 85 99 23

Tiếp nối sự thành công của Dự án Chung cư VP3 Linh Đàm, chủ đầu tư BEMES quyết định khởi công xây dựng Dự án Chung cư trên lô đất VP5 Linh Đàm thuộc Khu dịch vụ tổng hợp và nhà ở hồ Linh Đàm, phường Hoàng Liệt, Quận Hoàng Mai, Thành phố Hà Nội, theo điều chỉnh chức năng lô đất VP5 Linh Đàm từ đất xây dựng công trình thương mại văn phòng cho thuê sang đất xây dựng văn phòng, dịch vụ thương mại và nhà ở.

Lô đất VP5 Linh Đàm dung để xây dung tòa Chung cư có tổng diện tích 4.563,2m2 và là một phần của Khu dịch vụ tổng hợp và nhà ở hồ Linh Đàm. Doanh nghiệp xây dựng tư nhân số 1 Lai Châu sẽ triển khai xây dựng tổ hợp công trình cao 33 tầng bao gồm tầng hầm, trung tâm thương mại, khu căn hộ bình dân, căn hộ tầng penthouse và tầng kỹ thuật.



Chủ đầu tư: Doanh nghiệp xây dựng tư nhân số 1 Lai Châu
Khởi công: 23/03/2013
Bàn giao: Dự kiến Quý 1/2015
Mở bán: Dự kiến Quý 2/2013
Vị trí: Bán đảo Linh Đàm – Khu Đô Thị Linh Đàm, Hoàng Mai, Hà Nội.


Chung cư VP5 Linh Đàm gồm 01 tòa chung cư cao 33 tầng với các căn hộ có diện tích từ 50,5m2 đến 110 m2, cụ thể:
  • Tầng 1 làm khu Kiốt với 30 quầy Kiốt phục vụ đời sống của cư dân tòa nhà.
  • Tầng 2 là khu nhà trẻ, mẫu giáo và khu sinh hoạt cộng đồng.
  • Từ tầng 3 – 31 là các căn hộ cao cấp.
  • Tầng 32 được bố trí làm căn hộ Penhouse.
  • Tầng 33 là tầng kỹ thuật tòa nhà có vị trí đắc địa với 4 mặt đều giáp mặt đường trong đô thị.VP5 Linh Đàm



Diện tích: 50.5m2, 69.8m2, 71.7m2, 81.8m2, 92.3m2, 101m2

Tiến độ đóng tiền chia làm 5 đợt, mỗi đợt đóng 20%.
  • Đợt 1: Vào tên HĐ 20% giá gốc
  • Đợt 2: Xong Tầng 10 đóng tiếp 20%
  • Đợt 3: Xong Tầng 20 đóng tiếp 20%
  • Đợt 4: Xong Tầng 30 đóng tiếp 20%
  • Đợt 5 : Khi giao nhà đóng nốt 20%
Chung cư VP5 Linh Đàm tọa lạc tại trung tâm bán đảo Linh Đàm thuộc Khu đô thị mới Linh Đàm, Quận Hoàng Mai, TP.Hà Nội. Dự án Tọa lạc trên đường Nguyễn Duy Trinh giữa Khu đô thị Bán đảo Linh Đàm – Khu đô thị kiểu mẫu đầu tiên tại Hà Nội 70ha mặt nước hồ điều hòa và cây xanh, là 1 trong những dự án có môi trường xanh nhất tại khu vực Hà Nội.Tòa nhà được thiết kế hiện đại với hệ thống tiện ích, hiện đại hoàn toàn gồm 05 thang máy tốc độ cao, hệ thống an ninh 24/24, tầng hầm để xe, trung tâm thương mại, khu vui chơi giải trí, nhà trẻ, sinh hoạt cộng đồng, ...






ĐƠN VỊ ĐẠI DIỆN PHÂN PHỐI CHUNG CƯ VP5 LINH ĐÀM
HOTLINE: CHỊ THỦY 0934 669 228 / 0904 85 99 23 (Phụ trách dự án & Tư vấn miễn phí)



Tags: Chung cư VP5 Linh Đàm, Chung cu VP5 Linh Dam, Chung cư Linh Đàm, Chung cu Linh Dam, Chung cư VP5 Linh Đàm giá rẻ, Chung cu VP5 Linh Dam gia re, Chung cư Linh Đàm giá rẻ, Chung cu Linh Dam gia re, Dự án VP5 Linh Đàm, Du an VP5 Linh Dam